
Cena od : 89 900 zł
Opcje dodatkowe :
- Montaż +24900,00 zł
- Malowanie 1 krotne z zewnątrz standard kolor +3 300,00 zł
- Malowanie 2 krotne z zewnątrz standard kolor +6 600,00 zł
- Malowanie Grey Protect, 2x HK Lasur +6 600,00 zł
- Malowanie Deckfarbe +13 900,00 zł
- Pokrycie dachu gontem z obróbka drewniana +4 300,00 zł
- Pokrycie dachu gontem z obróbka blaszaną +7 600,00 zł
- Pokrycie dachu blachodachówką +13 200,00 zł
- Rynny PCV +3 000,00 zł
- Ocieplenie podłogi standard (100 mm) +4 000,00 zł
- Ocieplenie ścian standard (100 mm) +21 000,00 zł
- Ocieplenie dachu standard (100 mm) +7 500,00 zł
Transport wyliczany indywidualnie.
- Najważniejsze cechy:
- Nowoczesny design
- Duże przeszklenia oraz modne lamele
- Duży taras w kształcie litery L
- Przestronne pomieszczenia
- Wersja letniskowa
- W cenie stolarka PCV kolor/kolor
- Drzwi stalowe
- Bez pozwolenia budowlanego
- Wykonane z wysokiej klasy świerku
- 24-miesięczna gwarancja
- Zdjęcia i wizualizacja na stronie mają charakter wyłącznie poglądowy
Horyzont to nowy model, który został zaprojektowany na podstawie naszego najpopularniejszego domku Jan III. Unowocześniony w modne lamele oraz mocno przeszklony front doskonale dopasował się w dzisiejsze standardy domku typu stodoła. Powierzchnia do 35 m2 pozwala na budowę domku bez pozwolenia.
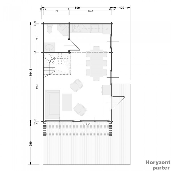
Horyzont został wykonany z litego bala świerkowego, jego wymiary bez wypustów to 684,5×480 cm, dzięki czemu niecałe 33 m2 ułatwiają procedurę zgłoszonego budynku. Dwuspadowy dach domku o powierzchni 51 m2 pokryty został deską o grubości 19 mm oraz ma kąt nachylenia 30 stopni. Horyzont w linii szczytowej sięga 482 cm. W pomieszczeniach, których ściany mają grubość 44 mm, wysokość wynosi 250 cm. Taras w kształcie litery L odznacza się powierzchnią 21,7 m2. Wejście znajduje się na bocznej części tarasu, z którego kierujemy się wprost do głównego pomieszczenia, dzieli się ono na większą otwartą przestrzeń oraz mniejszą zamkniętą, która sprawdzi się znakomicie w roli przytulnej łazienki. Dwa dwuskrzydłowe okna balkonowe na froncie o wymiarach 1900×2049 mm oraz dwa na bocznej elewacji okna jednoskrzydłowe 900×2049 mm doskonale rozświetlają wnętrze, którego duża powierzchnia umożliwia aranżację na kuchnię, część jadalną oraz salon. W rogu znajdują się schody prowadzące na piętro, które składa się z dwóch dużych sypialni, jedna z nich posiada wysokie okno balkonowe o wymiarach 900×2049 mm, a druga duże okna w kształcie trapezów prostokątnych o wymiarach 1900×1900 mm. Dopełnieniem na górze jest niewielka otwarta przestrzeń między pokojami, którą można zaaranżować na schowek.
Horyzont możemy wykonać w wersji letniskowej, jak i zmodyfikować do wersji całorocznej. Posiadamy również szeroką gamę usług dodatkowych dostosowaną do indywidualnych potrzeb naszych klientów.






















Wszystkie podane ceny są cenami brutto. Ceny opcji dodatkowych zawierają w sobie koszt robocizny oraz koszt materiałów. W razie pytań prosimy o kontakt.











