
Cena : 236 900,00 zł
–Montaż
- Montaż z impregnacją legarów – W CENIE
–Malowanie zewnętrzne
- Dwukrotne Remmers HK Lasur/Grey Protect – W CENIE
–Pokrycie dachu
- Blacha na rąbek – W CENIE
–Ocieplenie podłogi
- Wełna 150 mm – W CENIE
–Ocieplenie ścian od zewnątrz
- Wełna 150 mm – W CENIE
–Ocieplenie dachu
- Wełna 150 mm – W CENIE
–Rynny
- Rynny stalowe – W CENIE
–Obicie ścian blachą
- Obicie ścian blachą na rąbek- W CENIE
–Transport
- Transport 600 km- W CENIE
- Najważniejsze cechy:
- Nowoczesny design
- Duże przeszklenia oraz modne lamele
- Duży taras w kształcie litery L
- Przestronne pomieszczenia
- Pokrycie dachu blachą na rąbek Retro 38
- Wersja całoroczna
- Bez pozwolenia budowlanego
- Wykonane z wysokiej klasy świerku
- 24-miesięczna gwarancja
- Zdjęcia i wizualizacja na stronie mają charakter wyłącznie poglądowy

















Horyzont to nowy model, który został zaprojektowany na podstawie naszego najpopularniejszego domku Jan III. Unowocześniony w modne lamele oraz mocno przeszklony front doskonale dopasował się w dzisiejsze standardy domku typu stodoła. Powierzchnia do 35 m2 pozwala na budowę domku bez pozwolenia.
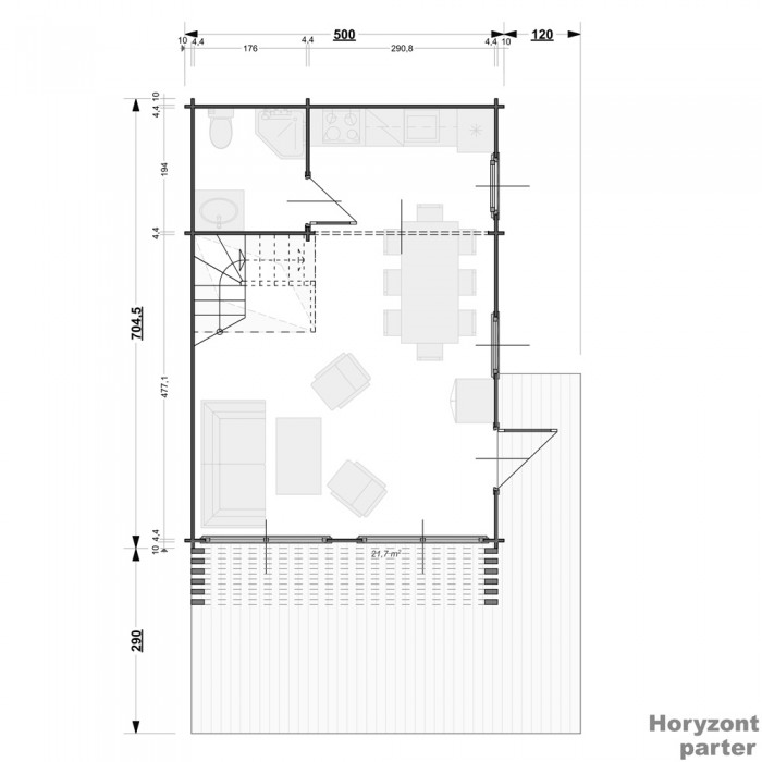
Horyzont został wykonany z litego bala świerkowego, jego wymiary bez wypustów to 684,5×480 cm, dzięki czemu niecałe 33 m2 ułatwiają procedurę zgłoszonego budynku. Dwuspadowy dach domku o powierzchni 51 m2 pokryty został deską o grubości 19 mm oraz ma kąt nachylenia 30 stopni. Horyzont w linii szczytowej sięga 482 cm. W pomieszczeniach, których ściany mają grubość 44 mm, wysokość wynosi 250 cm. Taras w kształcie litery L odznacza się powierzchnią 21,7 m2. Wejście znajduje się na bocznej części tarasu, z którego kierujemy się wprost do głównego pomieszczenia, dzieli się ono na większą otwartą przestrzeń oraz mniejszą zamkniętą, która sprawdzi się znakomicie w roli przytulnej łazienki. Dwa dwuskrzydłowe okna balkonowe na froncie o wymiarach 1900×2049 mm oraz dwa na bocznej elewacji okna jednoskrzydłowe 900×2049 mm doskonale rozświetlają wnętrze, którego duża powierzchnia umożliwia aranżację na kuchnię, część jadalną oraz salon. W rogu znajdują się schody prowadzące na piętro, które składa się z dwóch dużych sypialni, jedna z nich posiada wysokie okno balkonowe o wymiarach 900×2049 mm, a druga duże okna w kształcie trapezów prostokątnych o wymiarach 1900×1900 mm. Dopełnieniem na górze jest niewielka otwarta przestrzeń między pokojami, którą można zaaranżować na schowek.
Posiadamy również szeroką gamę usług dodatkowych dostosowaną do indywidualnych potrzeb naszych klientów.
Uwaga! W cenie Horyzontu w wersji całorocznej nie mieści się fundament, instalacja elektryczna oraz instalacja wodno-kanalizacyjna.

Wszystkie podane ceny są cenami brutto. Ceny opcji dodatkowych zawierają w sobie koszt robocizny oraz koszt materiałów. W razie pytań prosimy o kontakt.











